$3.550.000.000
Pesos ColombianosLocal Comercial en Venta – Altos del Poblado
Cerca a Las Palmas | Uso Comercial
Exclusivo local comercial en venta ubicado en Altos del Poblado, a pocos minutos de Las Palmas, en un sector de alta valorización, excelente proyección comercial y flujo constante de residentes y visitantes.
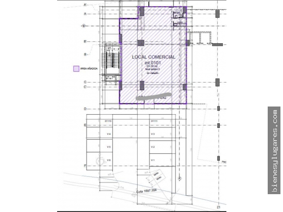
El inmueble cuenta con un área total de 231,5 m², se entrega en obra gris, ideal para desarrollar y adaptar a cualquier tipo de concepto comercial, servicios especializados, salud, gastronomía, showroom o marca premium.
📐 Características del local:
• Área construida: 231,5 m²
• Estado: Obra gris / básico
• Propiedad horizontal
• Planos arquitectónicos y técnicos disponibles
• Predial pendiente (post-escrituración)
• Registro fotográfico disponible
🚗 Parqueaderos:
• 2 parqueaderos de vehículos escriturados
• 2 parqueaderos de motos escriturados
• 6 parqueaderos de visitantes asignados como uso exclusivo según reglamento de PH
